Winkelwagen 0

€ 0,00

  • Scherpe prijzenScherpe prijzen
  • Alleen de beste kwaliteit Alleen de beste kwaliteit
  • Zelf afhalen of brengserviceZelf afhalen of brengservice
  • Ook rolluiken en zonweringOok rolluiken en zonwering

Veelgestelde vragen - Kunststof kozijnen - Onderdorpel

We hebben een aantal zaken voor je op een rij gezet.

Ga terug Veelgestelde vragen - Kunststof kozijnen Ga terug

Verschillende soorten onderdorpels voor uw kunststof deuren

Bij Creon heeft u de keuze voor een aluminium onderdorpel, een doorlopend kader of in het geval bij het kunststof verdiept profiel: de BUVA Isostone onderdorpel.

Hieronder vindt u extra informatie en technische doorsnedes van deze onderdorpels. Let op! Afhankelijk van uw keuze voor profiel en draairichting kan de onderdorpel wijzigen t.o.v. de onderdorpels op de afbeeldingen. Wij kunnen u van exacte informatie voorzien over uw situatie indien u uw informatie van uw order naar ons doorstuurt via [email protected].

BUVA onderdorpel
De BUVA Isostone onderdorpel is de vervanger van de traditionele hardstenen onderdorpel. Deze dorpel is geschikt voor het Creon.

Deze onderdorpel is samengesteld uit glasvezel versterkt kunststof. Belangrijke voordelen hiervan is de sterkte, breukvastheid en toepasbaar binnen de Nederlandse bouw. Doordat de onderdorpel is opgebouwd uit verschillende holle kamers, heeft deze onderdorpel een gunstige isolatiewaarde. De isolatiewaarde van deze dorpel is dusdanig gunstig, dat deze onderdorpel ook toepasbaar is bij passiefhuis kozijnen.

De afbeelding betreft een BUVA onderdorpel i.c.m. een naar binnen draaiende deur.

BUVA isostone onderdorpel

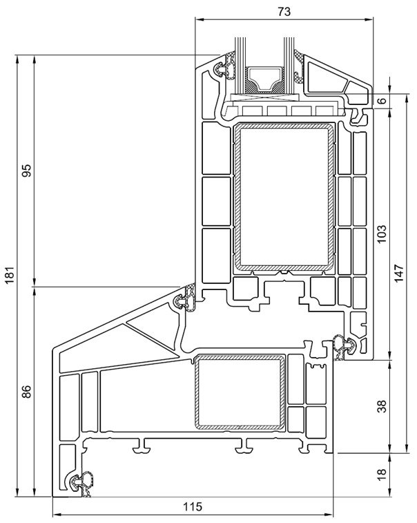
Aluminium onderdorpel
De aluminium onderdorpel is een aluminium profiel van ongeveer 2 centimeter hoog. Deze aluminium onderdorpel bevat meerdere kamers en is in combinatie met kunststof elementen geen koudebrug. Aan de buitenzijde wordt in het draaiende gedeelte van de deur een rubber voorzien, zodat het water niet binnen kan komen. Standaard is de kleur van de aluminium onderdorpel F1 (zilver).

De afbeelding betreft een aluminium dorpel voor een verdiept profiel i.c.m. een naar binnen draaiende deur.

Aluminium onderdorpel

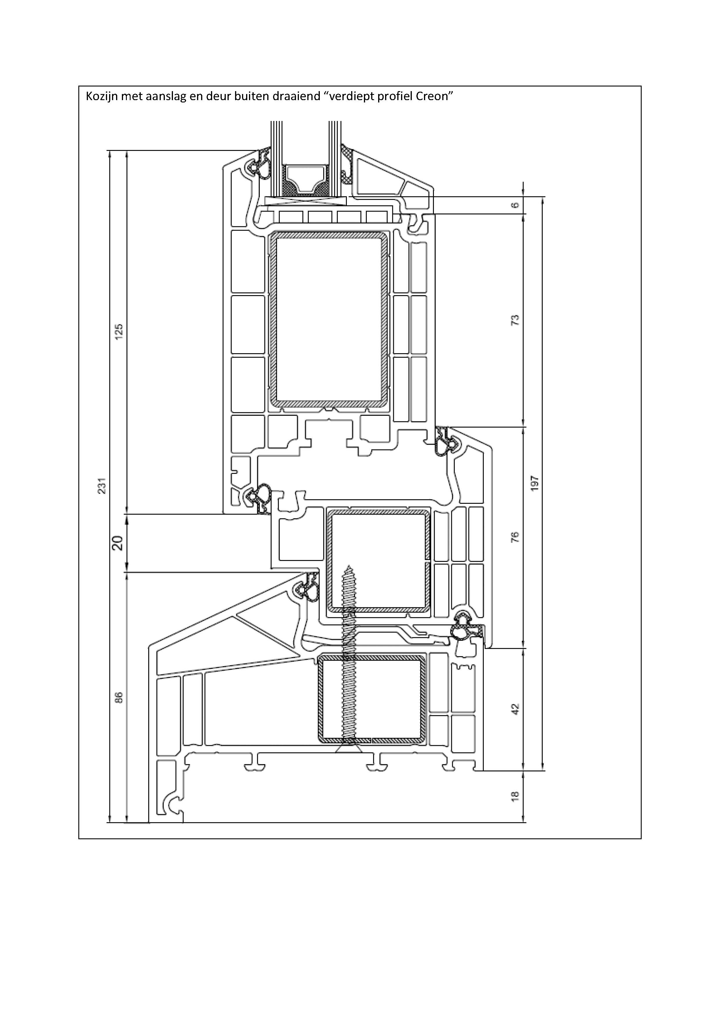
Doorlopend kader
Bij een doorlopend kader wordt aan de onderzijde hetzelfde profiel gebruikt als aan de bovenzijde. Het voordeel van een doorlopend kader is dat de deur een hoge winddichtheid en waterdichtheid heeft. Deze wordt bijvoorbeeld vaak gebruikt bij balkondeuren.

De eerste afbeelding betreft een doorlopend kader verdiept profiel met aanslag i.c.m. een naar binnen draaiende deur. De tweede afbeelding betreft een doorlopend kader verdiept profiel met aanslag i.c.m. een naar buiten draaiende deur.

doorlopend kader doorlopend kader

Heeft u nog vragen?

Neem contact op!