Veelgestelde vragen - Aluminium kozijnen - Aluprof MB86 Fold Line
We hebben een aantal zaken voor je op een rij gezet.
Aluminium vouwdeur profiel: Aluprof MB86 Fold Line
Brochure Aluprof MB86 Fold Line
Vouwdeuren bieden gebruikers veel vrijheid. Dankzij deze deuren kunt u eenvoudig gebruik maken van gunstige weersomstandigheden en letterlijk de barrière tussen het interieur van het gebouw en zijn omgeving slechten. Vouwdeuren vormen daardoor een perfecte, brede toegang van huis naar terras of een verbinding van café of restaurant met de buitenruimte die tijdens het seizoen wordt gebruikt.
Het systeem MB-86 FOLD LINE is een bijzonder comfortabele oplossing voor dagelijks gebruik. Het beschikt tegelijkertijd over zeer goede technische parameters en maakt zo constructies van grote afmetingen mogelijk. Vouwdeuren kunnen zowel naar buiten als naar binnen geopend worden en de vleugelconfiguratie kan op willekeurige wijze worden vormgegeven. Het is een modern product dat is ontworpen om te voldoen aan de hoge eisen van gebruikers, architecten en investeerders.
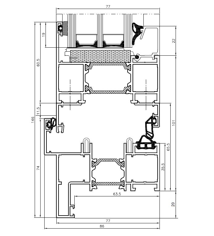
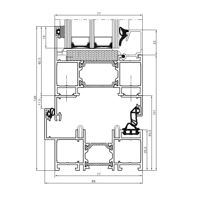
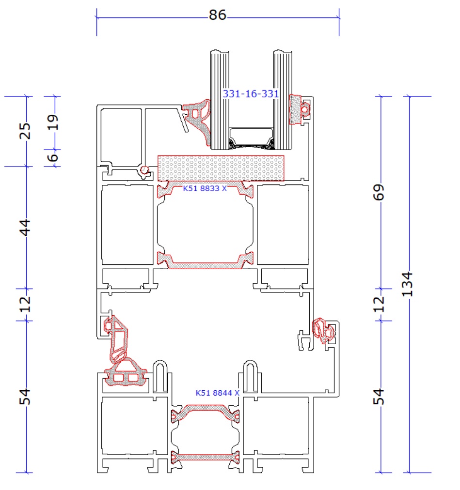
Technische doorsnedes



Heeft u nog vragen?
Neem contact op!